VIEWING OF VIRTUAL TOUR HIGHLY RECOMMENDED! Exceptional and substantial, this large detached converted barn is nestled in the sought-after semi-rural area of Seal Chart on the eastern outskirts of Sevenoaks. Attractively refurbished by its current owners since its conversion in the early 1970s, it combines spacious living with rustic character, featuring a charming courtyard garden and ample parking on the private driveway. The total plot size extends to nearly 1/4 acre, and the property boasts five bedrooms, including two en-suites, and offers extensive living accommodation whilst retaining it's character. Additionally, the property includes a self-contained studio flat, ideal for guests.
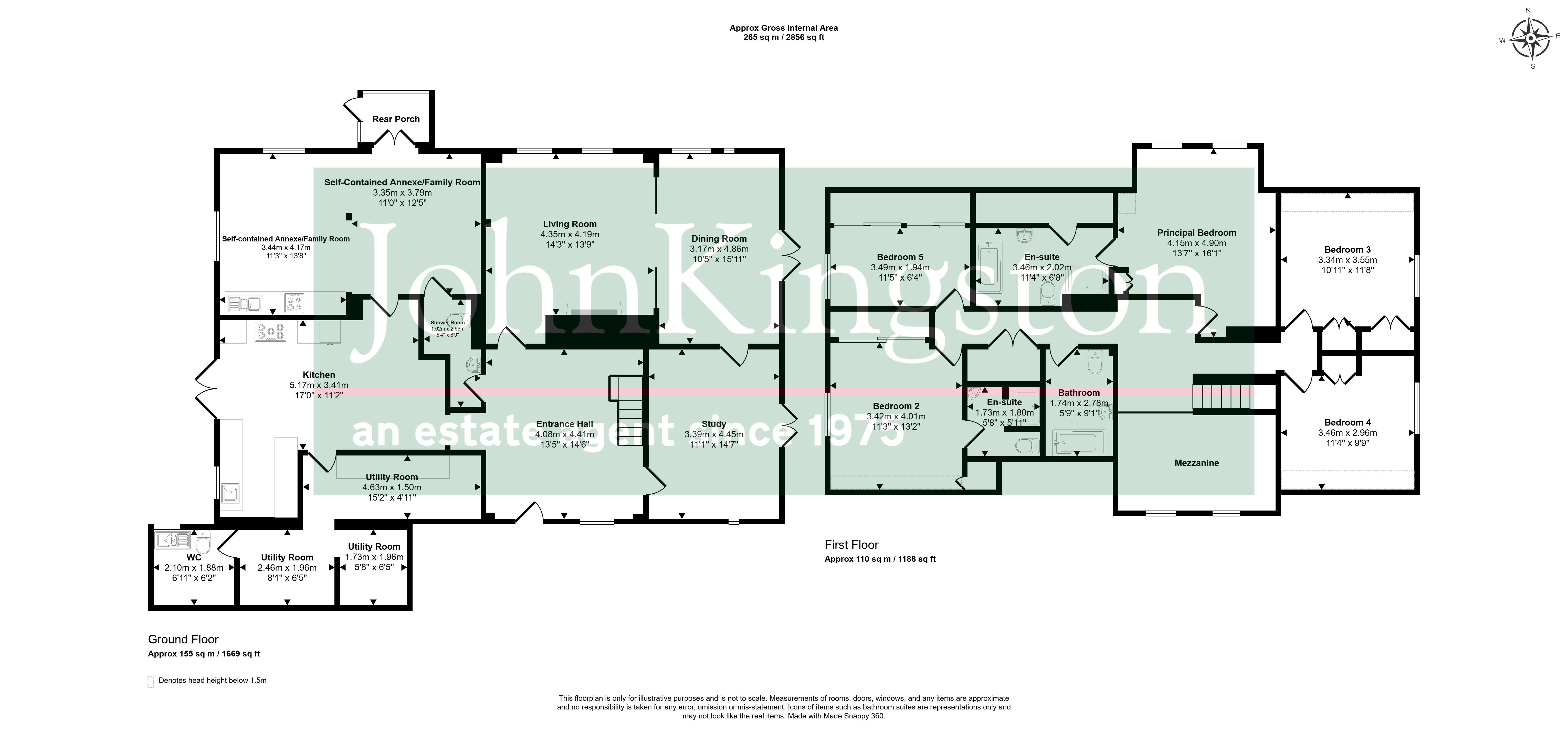
4.42m x 4.1m (14' 6" x 13' 5") Dramatic vaulted ceiling with a wealth of exposed timbers, double glazed windows to front, radiator, built in bar with space for fridge create a warm welcome to guests, turning galleried staircase to first floor, Oak flooring, central heating thermostat.
4.83m x 4.1m (15' 10" x 13' 5") Inglenook style fireplace with Oak bressummer and canopy hood, double glazed windows to rear, and radiator, open to dining room.
4.83m x 3.34m (15' 10" x 10' 11") Double glazed windows to rear and French doors to garden, radiator, door to study.
4.32m x 3.34m (14' 2" x 10' 11") Double glazed French doors to side courtyard, arrow slit window to front, exposed painted ragstone wall, radiator, door to dining room.
4.95m x 6.1m (16' 3" x 20' 0") Fitted with Shaker style wall and base units, worktops incorporating double sized stainless steel sink with mixer tap, space and plumbing for dishwasher, space for Range cooker, space for fridge/freezer, pull out larder cupboard, corner display unit, laminate wood floor, door to Annexe and Utility rooms.
Range of wall cupboards, Perrymatic oil fired boiler serving central heating and hot water, exposed painted ragstone wall, worktop, space and plumbing for washing machine and tumble dryer, quarry tiled floor, open to Boot Room which is open to Freezer Room and Cloakroom.
Quarry tiled floor, low level W.C. stainless steel sink unit
3.71m x 6.78m (12' 2" x 22' 3") Painted ragstone walls, exposed beams, radiators, double glazed window to side, fitted kitchen area with wall and base units, worktops, marble splashback, electric hob, integrated oven, space and plumbing for washing machine, wood effect flooring, double glazed French doors leading to rear lobby with door leading to small garden area.
2.64m x 1.53m (8' 8" x 5' 0") Enclosed shower cubicle with Aqualisa shower, vanity unit, low level W.C. redundant door to main house entrance hall, tiled walls and floor.
High level eaves storage, radiator, wealth of exposed timbers, doors to bedroom 1.
4.15m x 4.9m (13' 7" x 16' 1") Partly vaulted ceiling, built in double shelved cupboard, exposed timbers, two double gazed windows to rear, built in shoe cupboard, radiator, door to ensuite.
3.46m x 2.02m (11' 4" x 6' 8") Jacuzzi panelled bath, vanity unit, low level W.C., shaver point, eaves storage, exposed timbers, radiator, Grohe tower shower with shower head and body jets, splash back tiling, extractor fan.
Airing cupboard housing hot water tank, access to loft
3.42m x 4.01m (11' 3" x 13' 2") Built in wardrobes, exposed timbers, double glazed window to side, radiator, door to ensuite.
1.71m x 1.66m (5' 7" x 5' 5") Large shower cubicle, corner wash hand basin, low level W.C., radiator, shaver point, localised tiling, exposed beams.
3.49m x 1.94m (11' 5" x 6' 4") 1.98m x 3.35m (6' 6" x 11' 0") Double glazed window to side, radiator, built in wardrobes.
2.63m x 1.57m (8' 8" x 5' 2") Panelled bath with mixer tap and hand held shower, pedestal wash hand basin, localised tiling, low level W.C., shaver point, extractor fan, radiator, wall mounted mirror.
Doors to bedrooms 3 and 4, storage.
3.34m x 3.55m (10' 11" x 11' 8") Double glazed window to side, two built in double wardrobes, exposed timbers.
3.46m x 2.96m (11' 4" x 9' 9") Double glazed window to side, partly dormered, radiator, built in double wardrobe.
There is a courtyard to the side of the barn with outside water tap and lighting and power. The courtyard is enclosed by stables and outbuildings.
2.13m x 3.55m (7' 0" x 11' 8")
The stables make a great, versatile space for use as stables, store rooms, or have ample potential for further uses.
3.51m x 3.21m (11' 6" x 10' 6")
3.04m x 3.21m (10' 0" x 10' 6")
3.04m x 3.21m (10' 0" x 10' 6")
Opening to front and opening to yard.
The garden is mainly to the front with an area also to side, secluded seating areas, array of shrubs and bushes. Long driveway approached via 5bar gate leading to parking and turning area. The total plot extends to close to 1/4 acre and presents the opportunity to adapt to ones needs. The garden is currently courtyard style to the side, but the stables could be demolished and parking area utilised as more garden. The property is set within a farming complex and there are farm buildings to rear.
Council Tax Band G approx. £3,948.77 2025/26
Private drainage system which is shared with neighbouring properties.





























List of nearest schools to this property.
* Distances are straight line measurements.
Key Stage 2
Ightham Primary School - 0.96 milesKey Stage 4
Knole Development Centre - 1.56 milesKey Stage 5
Trinity School - 2.07 milesList of nearest public transport to this property.
* Distances are straight line measurements.
Train Station
Kemsing Rail Station - 0.8 milesAirport
Biggin Hill Airport - 10.14 milesCoach Station
Sevenoaks: Bus Station - 2.95 milesFerry Port
Gravesend Pier - 11.96 miles